行業資訊
城市地下綜合管廊主體結構優化設計
綜合管廊斷面布置的一般規定
1.斷面形式應根據納入管線的種類及規模、建設方式、預留空間等確定;
2.應滿足管線安裝、檢修、維護作業所需要的空間要求,管廊內部凈高不宜小于2.4米,雙側設置支架或管道時檢修通道凈寬不宜小于1.0米,單側設置支架或管道時檢修通道凈寬不宜小于0.9米;
3.管線布置應根據納入管線的種類、規模及周邊用地功能確定;
4.天然氣管道應在獨立艙室內設置,熱力管道采用蒸汽介質時應在獨立艙室內設置;
5.熱力管道不應與電力管道同艙設置;
6.110KV及以上電力電纜,不應與通信電纜同側設置;
7.給水管道與熱力管道同側布置時,給水管道宜在上方;
8.進入綜合管廊的排水管應采用分流制,雨水納入綜合管廊可利用結構本體或采用管道排水方式;
9.污水納入綜合管廊應采用管道排水方式,污水管道宜設置在綜合管廊的底部。
城市地下綜合管廊結構設計的一般規定
1.結構設計使用年限應為100年;
2.結構應根據設計使用年限和環境類別進行耐久性設計,并應符合現行國家標準《混凝土結構耐久性設計規范》(GB/T50476)的有關規定;
3.應按乙類建筑物進行抗震設計,并應滿足國家現行標準的有關規定;
4.結構安全等級應為一級,結構中各類構件的安全等級宜于整個結構的安全等級相同;
5.結構構件的裂縫控制等級應為三級,結構構件的最大裂縫寬度限值應小于或等于0.2mm,且不得貫通;
6.防水等級標準應為二級,并滿足結構的安全、耐久性和使用要求;
7.抗浮穩定性抗力系數不低于1.05。
現澆混凝土綜合管廊
一、設計原則及計算條件
1、綜合管廊變形縫的最大間距為30m。當采取有效措施時,變形縫的間距可適當增大,根據工程實際情況確定。
2、綜合管廊兩側應對稱、分層、均勻回填。管廊頂板上部1000mm范圍內回填材料應采用人工分層夯實,禁止大型碾壓機直接在管廊頂板上部施工。
3、在地基土層、荷載有顯著變化部位,應考慮基底不均勻沉降對結構的影響。
4、計算條件見下表。

二、材料要求
混凝土:管廊主體結構采用C35級防水混凝土,抗滲等級為P6;墊層采用C15級素混凝土。
水泥:采用硅酸鹽水泥、普通硅酸鹽水泥,強度等級不應低于42.5級。
鋼筋:采用HPB300、HRB400級鋼筋。
三、鋼筋的錨固與連接
1、受拉鋼筋的錨固:


2、鋼筋連接;
鋼筋連接可分為綁扎搭接、機械連接或焊接。
受拉鋼筋抗震綁扎搭接長度按下表:

四、示意圖















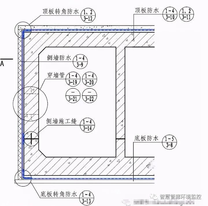
五、防水設計
設計要點:
1、現澆混凝土綜合管廊防水設計與施工應遵循“以防為主、剛柔并濟、多道設防、因地制宜、綜合治理”的技術原則。以結構自防水為主,與防水材料相結合,并加強變形縫、施工縫、穿墻管、預留孔洞、預埋件、各種接頭等細部節點的防水措施。
2、外設防水層宜連續包覆結構迎水面。
3、卷材與卷材疊合使用時,兩層卷材之間應滿粘。
主體結構防水設計:
1、防水混凝土抗滲等級應符合下表規定。

2、防水砂漿應采用聚合物水泥防水砂漿、摻外加劑的防水砂漿。
防水砂漿宜采用多層抹壓或噴涂的方法施工。宜采用預拌防水砂漿。
3、卷材防水層主要包括改性瀝青類防水卷材和合成高分子類防水卷材。各種卷材防水層的性能指標應符合國家相關標準、規范的要求。


預制管廊設計
1.箱涵的壁厚
箱涵壁厚對承載能力、材料用量、產品重量、施工工法、工程成本等有很大的影響。因此,合理確定箱涵的壁厚較為重要。
對箱涵壁厚影響因素最大的是箱涵內寬和箱涵使用中埋設的深度。箱涵在地下綜合管廊中應用最多的管頂埋設深度是3~4m,故箱涵多以3~4m 的埋設深度來確定箱涵的壁厚。
目前工程設計中常存在箱涵壁厚設計過厚的情況,如圖1 所示。在3~4m 的埋設深度范圍內,單艙箱涵內寬2400mm,壁厚400mm,斷面尺寸明顯與工況不匹配,壁厚定得過厚。

參照幾年來的工程實踐,筆者推薦選用表1 中的箱涵壁厚,再根據具體工程條件適當進行調整。

側板的厚度從結構受力上可以比頂板、底板減薄,內側板因基本為受壓結構,故可以更多地減薄,以利于減輕構件的總重量。但在單艙混凝土箱涵生產中,為了提高鋼模的利用率,一套鋼模可以調整高、寬制作多種規格的箱涵,單艙箱涵側板通常采用與頂板、底板相同的壁厚。
底板厚度不宜大于頂板厚度,一般取相同厚度。
2. 箱涵接口設計
(1)端面密封接口設計
縱向鎖緊端面密封接口如圖2、圖3 所示。和工作面密封接口一樣,箱涵一端為承口,另一端為插口(也可為平面),承口和插口尺寸偏差精度要求不高,但兩端端面既有平整度的要求,又有平行度的要求。

端面接口密封材料常用彈性膠條,其寬度為20×30mm、高為20mm、25mm。膠條的性能與用于混凝土管膠圈相似,為彌補箱涵構件端面混凝土存在的氣泡或小凹坑,彈性膠條的對接表面可膠接5mm厚的遇水膨脹膠料,使其水脹性能填充氣泡和凹坑,防止接口滲水。
(2)工作面密封接口設計
工作面密封接口在圓形混凝土管中廣泛應用,但箱涵為矩形接口,與圓形相比,安裝較為困難,對中不易,接口間隙偏差會加大,因而,應針對箱涵特點,改進工作面密封接口的設計。
要保持柔性接口在使用壽命期內具有足夠的閉水性,應使膠圈工作狀態的物理性能保持在一個合理水平上,這與設計的接口工作面間隙(簡稱接口間隙)、膠圈直徑及膠圈壓縮率密切相關。
接口間隙大則膠圈尺寸規格也大,相同的壓縮率下在工作面上可產生較大的壓縮接觸面和接觸壓力,對接口的變位適應性強,增大接口的密封效果、減小膠圈使用的物理疲勞,有利于管道長期保持良好的閉水性能。因此,箱涵工作面密封接口設計中應加大工作面的間隙和膠圈高度,
帶膠圈槽接口如圖5 所示。膠圈三相受擠,增加反力PS,加大了膠圈對工作面表面的擠壓接觸應力,有利于提高接口的抗滲能力。因此,在接口抗滲要求嚴格的管道中建議采用帶膠圈槽接口。在中、大型地下綜合管廊工程中應優先選用帶膠圈槽楔形膠圈密封接口。

(3)多功能密封接口設計
為了提高箱涵接口密封的可靠性,發揮端面密封和工作面密封各自的優點,設計了多功能接口,如圖6所示。

多功能接口在接口工作面及端面都安裝了膠圈,經壓縮分別形成工作面密封及端面密封,提高了接口密封的可靠性。多功能接口還具有以下優點:
①在二個膠圈間的適當位置,安裝帶螺紋的連接接頭,上下各一個,在生產工廠或工地現場與水泵連接后可對膠圈之間的空腔充水和加壓,檢驗接頭的抗滲密封效果。
②地下綜合管廊的設計使用年限為100 年,密封膠圈的耐老化性能成為關鍵,使用數十年后,橡膠的應力松弛、物理性能變化、彈性對混凝土面的擠壓應力是否還能滿足接口抗滲要求等成為疑問,而多功能接口不但具有現時接口質量可檢性,而且還具備接口質量的可補性。當接口中使用的膠圈性能不能滿足接口抗滲要求時,可擰開上下接口檢驗進水通道的螺帽,吹凈其中水分和雜物,接上灌漿設施,向兩個膠圈之間的空腔內灌注防水密封膠液,形成二次柔性密封接口。
③地基基礎的沉降或地震等因素都具有不可完全預見性,盡管設計中做了充分的考慮,但意外事故還是時有發生。當管道發生不均勻沉降、接口產生超出設計允許的位移變量時,原先的柔性接口可能不再能達到抗滲漏要求。此時,多功能接口可發揮其接口質量可補性作用,按上述②中的操作過程,即可形成二次柔性密封接口。因而,多功能接口特別適用于軟弱地基地區和地震多發地區。
管廊設計六大誤區
一、管廊高度的設計
(1)橫穿道路上空:次要道路4.5;主要道路6m以上;鐵路7m以上;檢修通道的凈高不小于3.1m。
(2)下部設備高度:泵周圍至少需要2.5m;換熱器上5.5m;管廊上管道與設備相連時,最小凈高為3.5m。
(3)考慮橫梁結構和斷面型式:對于雙層管廊,上下層間距為1-1.5m。
裝置間管廊高度,需考慮跨越區域,全廠采用一個標準,與其他裝置協調。
二、管廊寬度的設計
管廊的寬度主要由管子根數和管徑大小決定(最密集處),并加一定的余量(20%)。同時考慮:
(1)管廊下設備和通道。
(2)管間距:不同文獻規范計算方法不同。
一般管廊寬度為6-10m,超過9m采用部分或全部雙層管廊。
三、管架結構
有單柱管架和雙柱管架之分。寬度規定,單柱管架寬度系類為0.5、1、1.5、2、3米;雙柱管架寬度系列為3、4、6、8米。采用單根鋼管或者鋼筋混凝土立柱加鋼梁結構,大型采用鋼筋混凝土框架結構。
管廊的柱距和管架的跨距
(1)管廊的柱距與管架的跨距由敷設在其上的管道所產生的彎曲應力和撓度決定;
(2)管廊的柱距和管架的跨距由敷設在其上的最小管子的允許跨度或用多數管子的允許跨度確定。
(3)管架的跨距用6-8m,DN40以下的管道用3-4m。
四、管廊上管道的布置
慮管徑大小因素:大口徑管道盡量靠近管廊柱子,單柱管架管道均勻布置在管架柱子兩側。
考慮設備位置因素:與相連接的設備相適應,公用工程管道布置在中央。
考慮被輸送物料的性質因素:低溫管、不宜受熱管與熱管道分開布置,腐蝕性介質敷設在下層。
考慮熱應力的影響:高溫管道、常溫管道按吹掃介質溫度考慮熱膨脹量、高溫大口徑在外側。
考慮儀表管道、動力電纜的安全:工藝區敷設地下電纜,有腐蝕性液體滲入的地方,采用架空槽板敷設,儀表管線同電纜一起考慮。電纜不允許布置在熱管道附近或者輸送腐蝕性介質下方,一般敷設在管廊走道的下面或者管廊柱子外側。
五、裝置中主管廊寬度、跨度和高度的確定應考慮因素
(1)管廊的寬度
1)管廊的寬度主要由管道的數量和管徑的大小確定。并考慮一定的預留的寬度,一般主管廊管架應留有10%-20%的余量,并考慮其荷重。同時要考慮管廊下設備和通道以及管廊上空冷設備等結構的影響。如果要求敷設儀表電纜槽架和電力電纜槽架,還應考慮其所需的寬度。管廊上管道可以布置成單層或雙層,必要時也可布置三層。管廊的寬度一般不宜大于10m;
2)管廊上布置空冷器時,支柱跨距宜與空冷器的間距尺寸相同,以使管廊立柱與空冷器支柱中心線對齊;
3)管廊下布置泵時,應考慮泵的布置及其所需操作和檢修通道的寬度。如果泵的驅動機用電纜為地下敷設時,還應考慮電纜溝所需寬度。此外,還要考慮泵用冷卻水管道和排水管道的干管所需寬度;
4)由于整個管廊的管道布置密度并不相同,通常在首尾段管廊的管道數量較 少。因此,在必要時可以減小首尾段管廊的寬度或將雙層管廊變單層管廊。
(2)管廊的跨度:
管廊的柱距和省廊的跨距是由敷設遮其上的管道因垂直荷載所產生的允許彎曲撓度決定的,通常為6—9m。如中小型裝置中,小直徑的管道較多時,可在兩根支柱之間設置副梁使管道的跨距縮小。另外,管廊立柱的間距,宜與設備構架支柱的間距取得一致,以便管道通過。如果是混凝土管架,橫梁頂宜埋放一根φ20圓鋼或鋼板,以減少管道與橫梁間的摩擦力。
(3)管廊的高度可根據下面條件確定:
1)橫穿道路的空間。管廊在道路上空橫穿時,其凈空高度為:
①裝置內的檢修道不應小于4.5m;
②工廠道路不應小于5.0m;
③鐵路不應小于5.5m;
④管廊下檢修通道不應小于3m。
當管廊有桁架時要按桁架底高計算。
2)管廊下管道的最小高度。為有效地利用管廊空間,多在管底下布置泵??紤]到泵的操作和維護,至少需要3.5m;管廊上管道與分區設備相接時,一般應比管廊的底層管道標高低或高600~1000mm。所以管廊底層管底標局最小為3.5m。管廊下布置管殼式冷換設備時,由于設備高度增加,需要增加管廊下的凈空。
3)垂直相交的管廊高差。若省廊改變方向或兩管廊直角相交,其高差取決于管道相互連接的最小尺寸,一般以500~750mm為宜。對于大型裝置也可采用
1000mm高差。
4)管廊的結構尺寸。在確定省廊高度時,要考慮到管廊橫梁和縱梁的結構斷面和型式,務必使梁底和架底的高度,滿足上述確定管廊高度的要求。對于雙層管廊,上下層間距一般為1.2~2.0m,主要決定于管廊上最大管道的直徑。
5)至于裝置之間的管廊的高度取決于管架經過地區的具體情況。如沿工廠邊緣成罐區,不會影響廠區交通和擴建的地段,從經濟性和檢修方便考慮,可用管墩敷設,離地面高300~500mm即可滿足要求。
六、管道設計六大誤區
誤區一: 管廊覆土深度一般為2.5-3m,管廊進排風井只有背上式。
管廊的通風機房一般利用管廊上方的空間設置,同時考慮到相交管線的穿越,管廊頂部覆土深度一 般為2.5-3.0m。這樣的做法導致起點的雨污水支管標高與管廊就不能匹配。但是,管廊的覆土深度并不是只有2.5-3.0m,在特殊情況下,滿足抗浮 的 前提下,將管廊覆土減少至1.5m,此時,進排風井可采用外掛式,滿足通風需求,同時結合雨污水標高,甚至將起點雨污水管道納入綜合管廊。


外掛式
誤區二:管廊內各管線的吊裝口均按最大管道管節長度考慮,且采用地上式。
吊裝口是管線、電纜進入管廊的通道,分剛性管道吊裝口和纜線吊裝口,不能一概而論,大多采用地上式做法,如下圖所示。這種做法最大的弊端就是對景觀影響大。較好的做法是針對管線、電纜吊裝的特性分別設置吊裝口,且剛性管道隱蔽式吊裝口和地上式結合設置,一般一條線路上采用一個地上式,其余均為隱蔽式,這樣既 解決了管線安裝又最大限度降低環境影響。


誤區三:通風分區和防火分區必須一致,逃生口必須直通地面
管 廊規范只對防火分區進行了規定,而未對通風分區進行要求,因此在管廊設計中通常做法是通風分區和防火分區一致,這樣便于風機控制,但實際過程中,在管廊穿 越很寬障礙物、河道時,在景觀要求高時,通風分區每辦法和防火分區一致時,這時就要根據不同艙室功能要求,合理設置通風分區和消防分區,如一個通風分區包 含兩個防火分區,分區之間設置常開防火門,事故后排煙設置措施應征詢消防部門意見。
規范中對逃生口的距離進行了規定,但在特殊情況下,如管廊穿越河道時,每辦法對外設置直通地面逃生口時,經過專家消防論證時可利用臨近分區或艙室作為逃生口。
誤區四: 管廊內排水系統僅考慮滲漏水
管廊規范中排水系統主要考慮管廊滲漏水及管道排空水量,未考慮暴管和消防水量,因此一般排水系統配泵較小。設計認為暴管和消防水量適當兼顧。具體措施,適當 放大配泵參數,考慮一個分區內所有集水坑水泵在暴管和消防時能啟動,最大可能排出事故水量,為外援措施贏得時間,同時在給水管道專項設計時采用電動閥門對 暴管進行控制,減少暴管的水量。
誤區五: 管廊消防只有超細干粉適用
對 于電纜的消防措施,管廊規范的標準要高于電纜隧道的規范,對設有電力電纜的艙室應采用自動滅火系統,目前針對電力電纜適用的系統有高壓細水霧滅火系統、超 細干粉滅火系統、S型熱氣溶膠滅火系統。S型氣溶膠滅火系統由于3C認證要求,目前較少采用,高壓細水霧滅火系統初期投資大,且設計系統復雜,也較少應 用,目前形勢下超細干粉較多被應用,甚至有觀點說只有超細干粉適用管廊,但其維護成本和滅火時對儀器以及人員的安全影響不容忽視。筆者認為,設計上應從全 壽命周期角度出發,從運維的角度綜合考慮消防滅火系統的應用。
誤區六:巡檢機器人代替部分固定監測設備
對于大規模綜合管廊系統,采用巡檢機器人很必要,它可以替代部分人員巡檢,減輕人員巡檢負擔。發生災情時,機器人到現場,避免人員二次傷害。機器人采集到的圖像實時反饋與上傳,機器人傳感器數據實時反饋,控制機械手到達指定位置或者角度,遠程控制機器人執行其他維護任務。機器人功能強大,甚至有人提出減少固定監測設備的數量。其實采用巡檢設備是錦上添花的措施,它可以代替部分人員活動,但不能替代人員巡檢和固定監測設備,因為巡檢設備是移動式設備,存在盲區,不可能取代固定設備功能。
更多相關信息 還可關注中鐵城際公眾號矩陣 掃一掃下方二維碼即可關注





